|
|
Descriptions:
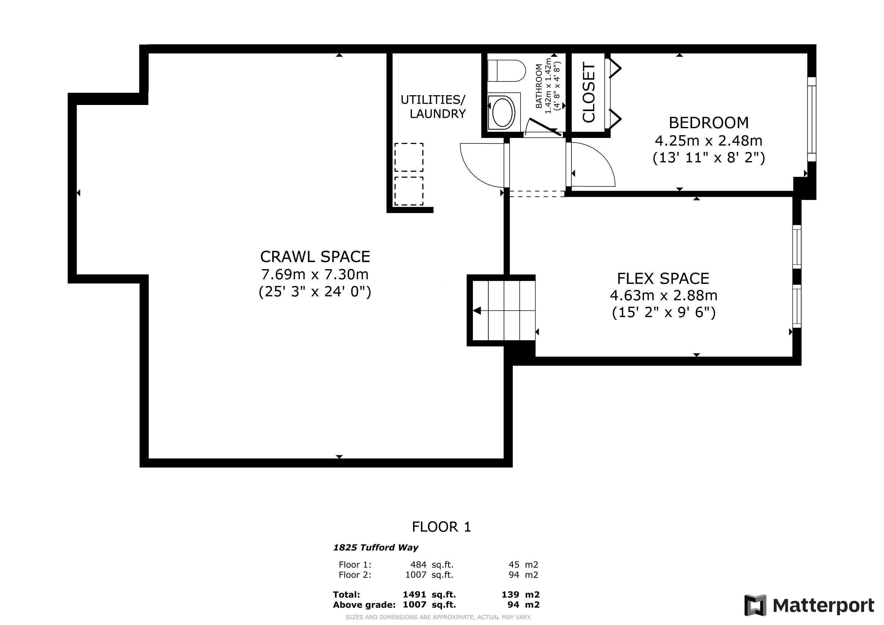
Terwillegar Towne Home Alert! Former Jayman Show Home, 3 Level Split, Fully Finished & VERY WELL MAINTAINED. UPDATES INCLUDE: FURNACE & A/C (2022), HOT WATER TANK (2022), ROOF (2022), Newer Fridge & Range, Deck and even fresh coat of paint in 2024! OPEN CONCEPT Main Floor with Vaulted Ceiling, Huge windows allowing tons of lights, Stainless Steel appliances, island kitchen and living room with gas fireplace. Total of 3 bedrooms (2 up/1 down). Primary Bedroom with Walk In Closet and "Jack & Jill" doorway to the 4 pce Bath. Lower level family room, 2pce Bath, 3rd Bedroom, & large crawl space for storage. Sunny South East Backyard is landscaped and fully fenced making sure kids or pets are safe. Double detached garage is insulated, drywalled, a work bench & a sweet hidden stairwell to the garage attic. Plenty space for gardener lover. Minutes to 23ave bus terminal, Terwillegar Rec Centre, schools, all the needed shopping, parks, Trails, Bike routs, Terwillegar dog park and YEG airport.
|
|
|
| Includes: |
|
Air Conditioning-Central, Dishwasher-Built-In, Dryer, Garage Control, Garage Opener, Hood Fan, Refrigerator, Stove-Electric, Washer, Window Coverings |
|
|
|
|
|
| Site Influences: |
| Fenced, Golf Nearby, Landscaped, Low Maintenance Landscape, Playground Nearby, Public Transportation, Schools, Shopping Nearby, Vegetable Garden |
|
| Legal Description: |
| ACCESS Legal Description |
|
| Location & Listing Info: |
| Neighbourhood: |
Terwillegar Towne
|
|
| Lot Shape: |
Rectangular |
|
|
|
|
|
| Property Info: |
|
| Property Type: |
Detached Single Family |
| Home Style: |
3 Level Split |
| Year Built: |
2000 |
| Total Floor Area: |
1,012 sq. ft. |
| Front Exposure: |
Northwest
|
|
|
|
|
|
| Exterior: |
|
| Exterior: |
Fenced, Golf Nearby, Landscaped, Low Maintenance Landscape, Playground Nearby, Public Transportation, Schools, Shopping Nearby, Vegetable Garden |
| Front Exposure: |
Northwest |
| Roof: |
Asphalt Shingles |
|
|
|
|
|
|
|
|
|
|
| Rooms: |
|
| Total Bedrooms: |
3
(Bedrooms Above: 2)
|
| Bathrooms: |
Full: 1
/ Half: 1
|
| Rooms Above: |
5 |
|
|
|
|
|
| Additional Info: |
|
| Heating: |
Y |
| Basement: |
Partial, Finished |
| Basement Type: |
Partial, Finished |
| Floor Finish: |
Carpet, Linoleum |
| Parking: |
Double Garage Detached |
|
|
|
|
|
|
|
|
|
|
|
|
|
|
|
 |
Contact Corey McEwen -
#101, 37 Athabascan Ave, Sherwood Park, Alberta, T8A 4H3
|
|
|
|
|
|
|
|
|
|
Copyright 2026 by the REALTORS® Association of Edmonton. All Rights Reserved. Data is deemed reliable but is not guaranteed accurate by the REALTORS® Association of Edmonton. Data was last updated January 21, 2026, 1:08 am. |
|
|
|
|
The data included on this website is deemed to be reliable, but is not guaranteed to be accurate by the REALTORS® Association of Edmonton.
MLS®, Multiple Listing Service®, and the associated logos are all registered certification marks owned by CREA and are used to identify real estate services provided by brokers and salespersons who are members of CREA. The trademarks REALTOR®, REALTORS® and the REALTOR® logo are controlled by The Canadian Real Estate Association (CREA) and identify real estate professionals who are members of CREA. Used under license.
|